Welcome to WEE HOLLOW, a small home community, located in the heart of Camp Verde right off historic Mainstreet. Walking distance to several restaurants, antique shops, the historic Fort Verde.
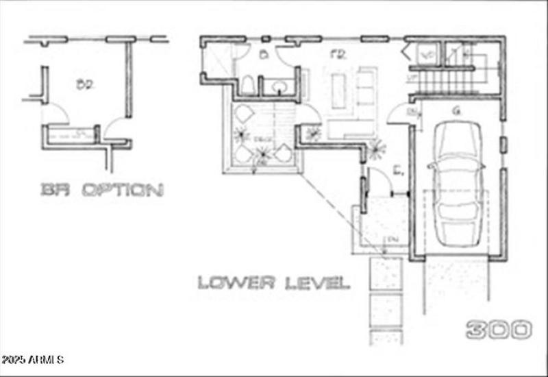
Brand new homes ranging from 784-996 sf. All single-family, detached homes, some with garages, some with covered carports. Southwest contemporary style with nice upgrades and finishes. Buyer to choose finishes.
6 floorplans to choose from.
All 2 stories.
6 elvations on the front to give the homes a unique look including variations of metal, wood, brick and stucco.
You own the lot, no leases.
HOA does allow short term rental.
Lots of potential!
Camp Verde offers many festivities throughout the year including Fort Verde Days/Parade, Corn Fest Days, Christmas lite parade.
Camp Verde Main Street.
Turn onto Fain Street at the corner is
Yavapai Title.
This brings you directly into Wee Hollow Subdivision.
the model is 107 Wee Hollow.
Dwelling Type: Residential
Subdivision: WEE HOLLOW SUBDIVISION
Year Built: 2026, County: N/A
Camp Verde Main Street.
Turn onto Fain Street at the corner is
Yavapai Title.
This brings you directly into Wee Hollow Subdivision.
the model is 107 Wee Hollow.
Listing is courtesy of Russ Lyon Sotheby's International Realty
Sign in to your account to continue