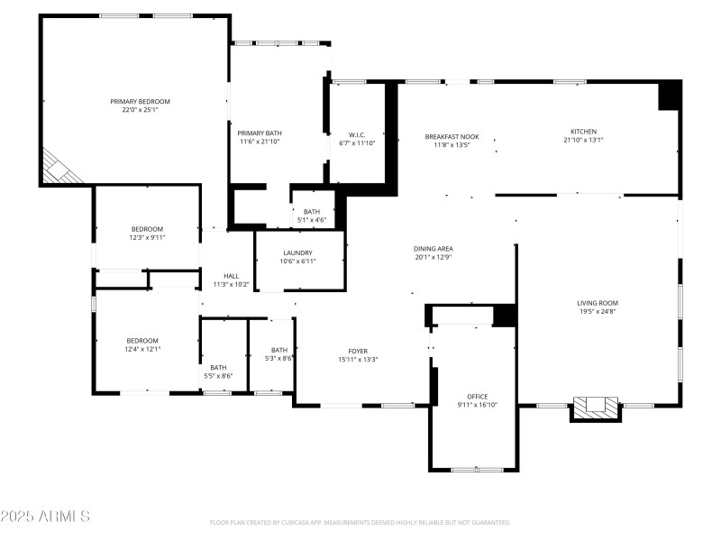
This beautifully remodeled Shea Foothills retreat combines modern design with timeless Arizona charm. Featuring 4 bedrooms, 3 baths, it's made for both relaxation and entertaining. The chef's kitchen impresses with high-end appliances, a gas range, and a spacious island that flows into bright, open living areas beneath vaulted ceilings. The expansive primary suite offers a cozy fireplace and spa-inspired bath, while three additional bedrooms provide plenty of flexibility - one featuring its own en suite bathroom, perfect for guests or multi-generational living. Outside, a resort-style backyard awaits with a sparkling pool, lush turf, and mountain-view serenity.
Perfectly positioned in the highly sought-after Shea Corridor and within the top-rated Paradise Valley School District, this home offers both convenience and connection. Just minutes from the exciting PV Renewed redevelopmentcoming soon with premier shopping, dining, and entertainmentyou'll enjoy the best of modern living in one of Phoenix's most desirable neighborhoods.
Dwelling Type: Residential
Subdivision: SHEA FOOTHILLS
Year Built: 1962, County: N/A
Listing is courtesy of Compass
Sign in to your account to continue