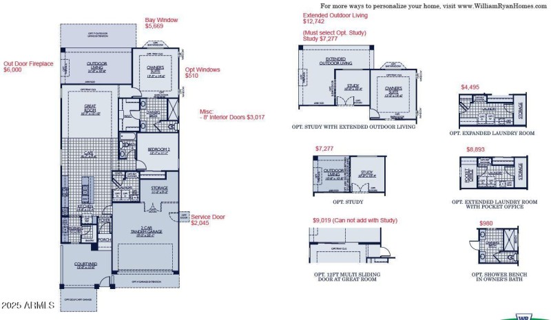
**NEW CONSTRUCTION** Experience the new home-buying journey from the ground up! There are multiple 'Standard Finishes' within the list price for Granite, Tile, Carpet, and Cabinets. You will meet with a professional designer to guide you through the process to personalize your dream home! This home features a spacious Kitchen w/ a Large Granite Island, Walk-in Pantry, and SS appliances. The Owner's Suite boasts split vanities and a ZERO-STEP W/in shower, & W/in Closet. Enjoy SAVINGS with Energy Efficient features: SPRAY FOAM INSULATION, Tankless Hot Water Heater, Water Sense fixtures & more! Splurge a little when you see how much money you are saving with our 3-year Bill Guarantee! Enjoy the Lifestyle of Victory in Verrado with an abundant amount of amenities, activities, and clubs!
Must go through the Big Patio clubhouse located at 20818 W Pasadena Ave
From Phoenix (I-10) West on I-10, Exit onto Verrado Way, and head North. There are signs along Verrado Way will lead you
Dwelling Type: Residential
Subdivision: VERRADO VICTORY DISTRICT PHASE 8
Year Built: 2025, County: N/A
Must go through the Big Patio clubhouse located at 20818 W Pasadena Ave
From Phoenix (I-10) West on I-10, Exit onto Verrado Way, and head North. There are signs along Verrado Way will lead you
Listing is courtesy of William Ryan Realty, Inc
Sign in to your account to continue