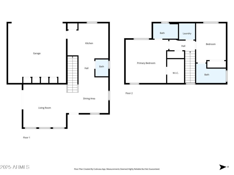
NEW CARPET JUST INSTALLED!! Whether you're a first-time homebuyer, winter visitor, or investor, this cozy home offers unbeatable charm, value & convenience. Truly a gem in a fantastic neighborhood walking distance to the Fry's Supermarket, VERDE Dining & Shopping District! Minutes from 202 Access, Discovery Park, San Tan Village, Joe's Farm Grill & More! Welcome to The Willows, a picturesque community with tree-lined streets & an array of fantastic amenities, including 2 sparkling community pools, a park, tot lot & sports courts. This charming home boasts 9' ceilings and beautiful wood-look flooring in Great Room & Dining Spaces, creating an inviting & open atmosphere. The kitchen is a beauty, featuring stunning granite countertops, ample cabinet space, pantry & eat-in dining! Upstairs, ALL NEW Carpet just installed 11/4 making this home move-in ready. The primary bedroom is oversized and has an ensuite bath complete with a walk-in closet. You'll also find nice sized guest bedroom with ensuite bathroom. Upstairs laundry room provides additional storage & ease of access. 2 car garage has epoxy floor coating, built in cabinets, hanging storage & insulated garage door. Enjoy a low-maintenance lifestyle with Cozy Outdoor Patio for Coffee & BBQs and front yard landscaping cared for by the HOA. This is Truly the Perfect Home in the Heart of Gilbert, just 3 miles to Mesa Gateway, 30 min to Sky Harbor & Old Town Scottsdale!
From Williamsfield, Head North on Recker to Oakland, Turn RIght on Oakland and proceed to 2nd exit at round about 1/2 block. Home will be on the Right.
Dwelling Type: Residential
Subdivision: WILLOWS
Year Built: 2010, County: N/A
From Williamsfield, Head North on Recker to Oakland, Turn RIght on Oakland and proceed to 2nd exit at round about 1/2 block. Home will be on the Right.
Listing is courtesy of Your Home Sold Guaranteed Realty
Sign in to your account to continue