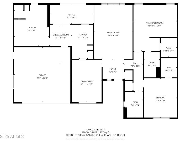
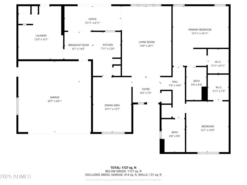
This FANTASTIC and FUNCTIONAL floorplan has a LARGE GREAT ROOM as you enter, a FLEX ROOM, currently used as a dining room, an EXTENSION at the ENCLOSED PORCH area, and a BONUS ROOM/DEN with ENCLOSED LAUNDRY ROOM*Your KITCHEN has UPDATED COUNTERS, white appliances, and a PANTRY*OWNER SUITE has vanity, WALK-IN CLOSET, and SHOWER at bath*Secondary bedroom has LARGE WALK-IN closet*You have flooring of WOOD-LIKE TILE and carpet*NEWER ROOF*Enclosed TWO-CAR GARAGE*EXTERIOR has EXTENDED COVERED BACK PATIO and EASY CARE DESERT LANDSCAPE at the expansive yard*COME BY and see why YOU WILL WANT TO CALL THIS PLACE YOUR ''HOME''
West on Union Hills*South on 107th Ave*West on Manzanita to this beautiful home*
Dwelling Type: Residential
Subdivision: SUN CITY UNIT 45
Year Built: 1976, County: N/A
West on Union Hills*South on 107th Ave*West on Manzanita to this beautiful home*
Listing is courtesy of Keller Williams, Professional Partners