INVESTOR OPPORTUNITY - SHORT SALE
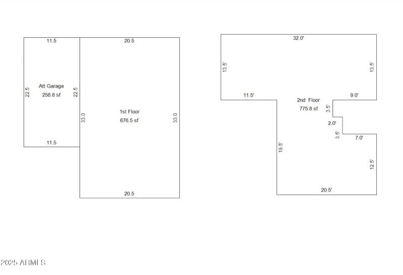
This 3-bed, 2.5-bath Phoenix home in the Northglen community is a solid investment for savvy buyers looking to add value. With nearly 1,500 sq ft of living space, tile roof, dual-pane windows, and low HOA fees, this property offers incredible upside potential. Great bones, functional layout, and a prime location just minutes from I-10, downtown Phoenix, and major employment corridors make this an ideal buy-and-hold, flip, or rental play.
The home needs some TLC and cosmetic updates but has the foundation of a strong long-term asset in a steadily appreciating area. Neighborhood rents and resale values support strong ROI once improvements are made. Cash, hard money, or strong conventional buyers preferred. Don't miss this opportunity to transform potential into profit perfect for investors, contractors, or anyone ready to build equity fast.
Dwelling Type: Residential
Subdivision: NORTHGLEN
Year Built: 2006, County: N/A
Listing is courtesy of HomeSmart
Sign in to your account to continue