Parcel # 105-46-005S (land only ) included in this listing/sale. This listing is a child to parent listing MLS: 6942021.
Expansive single family home placed directly in sky island paradise! Over 5 acres of fully mature trees, including mature fruit trees (apricot, plum, pear & pomegranate). Enjoy the large front covered patio, private balconies, running pond, low maintenance turfed backyard, fountain and private courtyards.
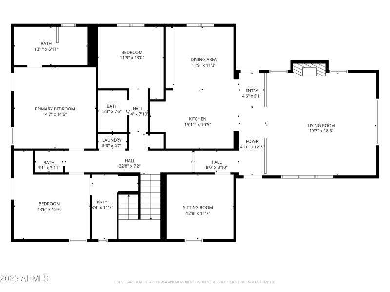
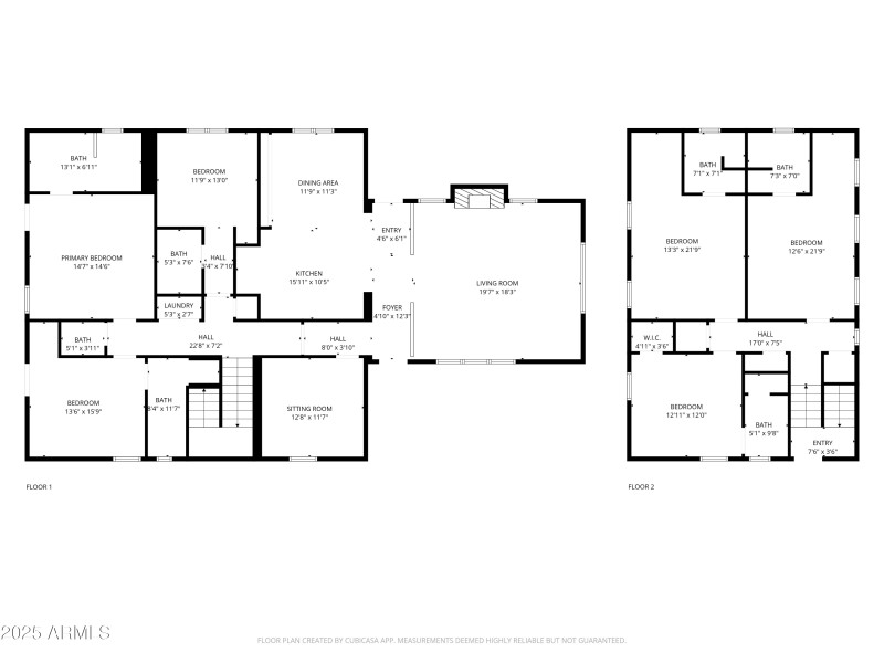
The interior features a massive front living room with an impressive stone fireplace, vaulted ceilings with beautiful wood beams, and large windows to take in the breathtaking surroundings. Don't be surprised if the wildlife is easily in view! In addition there is a full kitchen with an attached dining room area. Ample storage, stainless steel appliances including a commercial size refrigerator, non-laminate countertops and room for a table that could seat 10 or more! Additionally on the first floor there is a bonus room area, laundry which features 2 stacked units, a half bath and 3 bedrooms that each feature their own en suite bathrooms. 2 of 3 lower level bedrooms also have private balconies overlooking the peaceful backyard. The second story offers 3 additional bedrooms each with their own bathrooms.
This spacious home is nestled at the end of Ramsey Canyon Rd offering privacy, land to expand and build, ample parking, two electric charging stations, local wildlife, and sky islands temps with lush vegetation. Raw land has water access! You need to see this one!
South on Hwy 92, West on Ramsey Canyon Rd, follow to the end of the road, property is on the right just before Ramsey Canyon Preserve.
Dwelling Type: Residential
Subdivision: S10 T23S R20E
Year Built: 1978, County: N/A
South on Hwy 92, West on Ramsey Canyon Rd, follow to the end of the road, property is on the right just before Ramsey Canyon Preserve.
Listing is courtesy of Haymore Real Estate LLC
Sign in to your account to continue