Dreaming of wide-open spaces, fresh air, and room for your horses to roam? This stunning 2023-built country home sits on 2.5 irrigated acres, crafted for those who want to live the ranch life without sacrificing comfort or style.
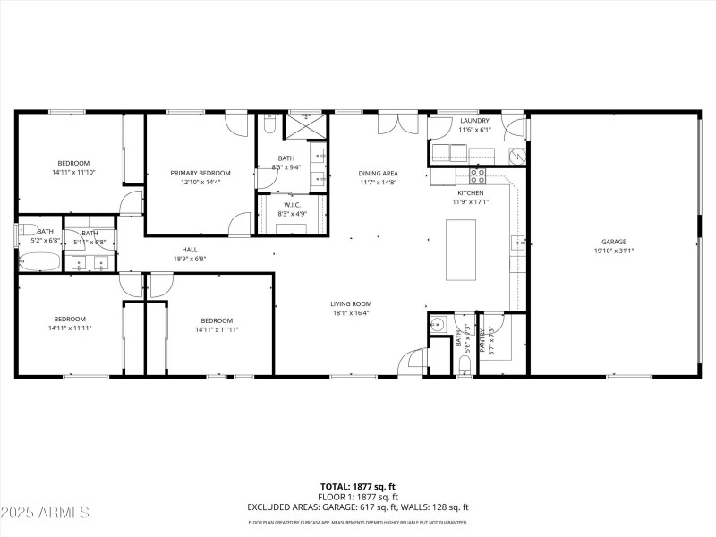
Built with 2x6 construction, open-cell foam insulation, vaulted and 10ft ceilings throughout, this 4-bed, 2.5-bath home was designed with quality and efficiency in mind, so your utility bills stay low. You'll love the floor plan, granite counters, walk-in pantry, spacious mud/laundry room, and epoxy-finished 3-car garage with 240V outlet. Outside, the property is fully fenced and laser-leveled for smooth flood irrigation, featuring grass, 7 fruit trees, a barn with stalls equipped with LED lighting and water, a round pen, turnout, and arena area. Bring y horses, your toys, and your dreams, this one has the space for it all. See upgrades list in documents for dimensions and more!
From Attaway: East on Arizona Farms, North on Felix, East on Dixie
Dwelling Type: Residential
Subdivision: None
Year Built: 2023, County: N/A
From Attaway: East on Arizona Farms, North on Felix, East on Dixie
Listing is courtesy of Real Broker
Sign in to your account to continue