Welcome to this modern Gilbert corner lot residence offering the perfect blend of comfort, style, and convenience. Located in one of the East Valley's most desirable neighborhoods, Cooley Station, this home features an inviting floorplan, upgraded finishes throughout, and easy access to parks, shopping, and major freeways. Don't miss this opportunity to live in a beautifully maintained home with all the features you want! PROPERTY FEATURES:
Spacious Layout:
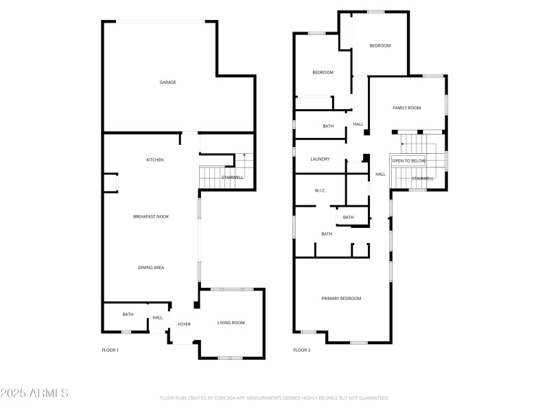
This 3-bed, 3-bath, 2,150 sq ft home offers an open and bright layout with a large main living area that flows seamlessly into the dining and kitchen spaceperfect for entertaining or enjoying cozy evenings at home. It also has a loft upstairs giving extra space for an office or play area.
Gourmet Kitchen:
The kitchen features modern cabinetry, stainless steel appliances, cooktop stove, granite countertops, a spacious island with seating, and a walk-in pantry for extra storage. Ideal for home cooks and entertainers alike.
Primary Suite Retreat:
Enjoy a private retreat with a large walk-in his/her shower, dual sinks, a private toilet room, and a walk-in closet complete with a built-in shelving system.
Additional Bedrooms:
Two additional bedrooms are located down the hall, offering privacy and comfort. Perfect for guests, family members, or a home office setup.
Attached Two-Car Garage:
The home includes an attached two-car garage with direct entry into the house and room for extra storage.
In-Unit Laundry:
Full-sized washer and dryer on second floor w/ bedrooms included for your convenience.
Outdoors:
The backyard offers a low-maintenance with turf and pavers and includes a shedideal for relaxing, grilling, or enjoying beautiful Arizona evenings.
Community & Location Perks:
Highly Desirable Location -
Situated in the highly desirable Cooley Station communities near community pool, greenbelts, playgrounds, and community walking paths. Conveniently close to Desert Sky Park, Gilbert Regional Park, and numerous outdoor recreation options.
Easy Commute -
Quick access to Loop 202 and nearby major roads makes commuting throughout the East Valley simple and efficient.
Nearby Shopping, Recreation & Dining -
Just minutes from SanTan Village, Topgolf, Costco, Trader Joe's, Harkins Theatres, and an abundance of restaurants, golf courses, boutiques, and entertainment options.
PET RULE:
Cats: Yes
Dogs: Yes
IMPORTANT THINGS TO KNOW :
*Application Fee: $50 per applicant 18 or older. (Please review Keyrenter's Application Criteria prior to applying, as this is non-refundable.)
*Applications can't be screened until all applicants send in all their documents.
*Applications are screened first come first serve.
Appliances: Refrigerator, Stove, Oven, Microwave, Dishwasher, Washer and Dryer, Water Softener.
LEASE LENGTH: 12-month Minimum
SPECIAL LEASE PROVISIONS: If not specified here, will be listed in lease agreement.
APPLICATION TURNAROUND TIME: 24 to 72 business hours, if all required documents submitted by apply persons over the age of 18 years old.
ADDITIONAL ONE TIME FEES AND DEPOSITS (details in lease agreement):
$50 Application Fee per applicant 18 or older (Nonrefundable)
Security Deposit: Equal to one month's rent (Refundable)
$150 Lease Initiation Fee (Nonrefundable)
$100 Cleaning Fee (Nonrefundable)
$250 Pet Security Deposit per pet (Refundable) - if applicable
$100 Pet Fee (Nonrefundable)
Pets (if allowed): Pet application fee of $30 per pet (nonrefundable) charged by 3rd party vendor PetScreening. All pets & animals MUST be registered at time of application
ADDITIONAL MONTHLY FEES:
$15 Monthly Residential Administration (MRA) Fee
$50 Pet Rent (First Pet) / Month. $25 / Month (Additional Pets) - if applicable
Choose from the following Resident Benefits Packages (RBP):
All Keyrenter Gilbert Property Management residents are enrolled in one of the following:
RBP #1: $45.95/month -, includes liability insurance (if you use your own insurance the cost goes down by $11.95/month), credit building to help boost the resident's credit score with timely rent payments, up to $1M Identity Theft Protection, HVAC air filter delivery, move-in concierge service making utility connection and home service setup a breeze during your move-in, our best-in-class resident rewards program, local discounts, and much more! More details upon application.
RBP #2: $38.00/month - includes liability insurance (if you use your own insurance the cost goes down by $11.95/month), HVAC air filter delivery, move-in concierge service making utility connection and home service setup a breeze during your move-in, local discounts, and much more! More details upon application.
*Other terms and conditions may apply. All information including advertised rent and other charges are deemed reliable but not guaranteed and are subject to change.
Check the listing at Keyrenter Gilbert website for details.
From Williams Field Eastbound, take a left onto Wade , then right on Vest. Take a Left on Benjamin, go around the roundabout at Perkinsville head West. Home is on the left.
Dwelling Type: Residential Lease
Subdivision: COOLEY STATION PARCEL 15 PHASE 1
Year Built: 2016, County: N/A
From Williams Field Eastbound, take a left onto Wade , then right on Vest. Take a Left on Benjamin, go around the roundabout at Perkinsville head West. Home is on the left.
Listing is courtesy of Keyrenter Gilbert Property Management