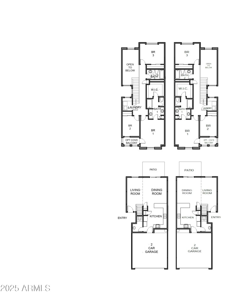
These units are under construction. Do not enter without scheduling.
They will be ready in January for delivery.
Coming from 51, head West on Union Hills to 20th Street.
Left (South) on 20th to Michigan Ave. Right (East) to 2045. South side of the street.
Dwelling Type: Multiple Dwellings
Subdivision: NEW BELL PARK
Year Built: 1963, County: N/A
Coming from 51, head West on Union Hills to 20th Street.
Left (South) on 20th to Michigan Ave. Right (East) to 2045. South side of the street.
Listing is courtesy of Source Real Estate