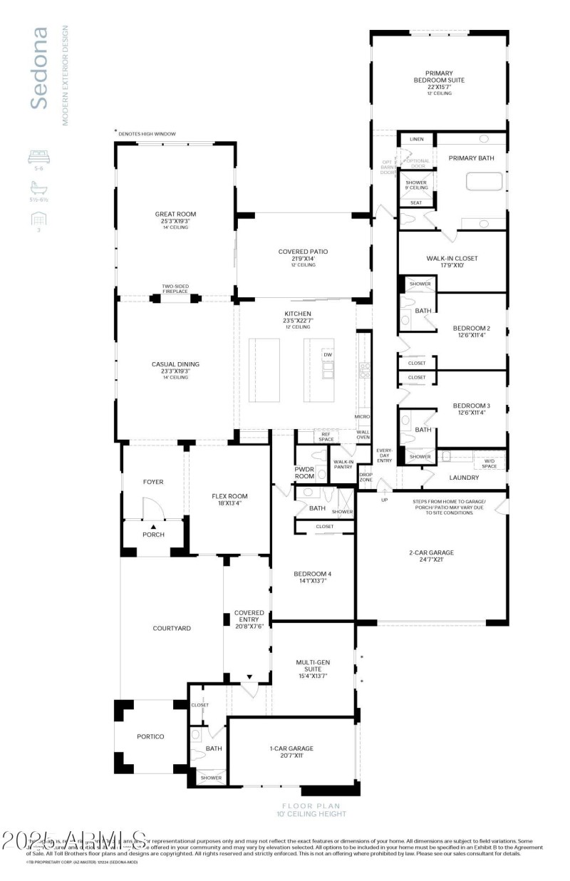
The Sedona home design offers effortless entertaining for family and friends. Welcoming portico and courtyard at the front entryway lead into gorgeous open-concept living. Stunning great room with double sided 60' fireplace and grand multi-slide stacking door. Great room, casual dining, and kitchen have soaring ceilings and open to a generously sized covered patio for indoor/outdoor Arizona living at its finest. Varying ceiling heights up to 14'. The well-appointed kitchen has plentiful counter and cabinet space in addition to a generous walk-in pantry. The expansive primary bedroom suite is inclusive of dual vanities, large soaking tub, and a luxe shower with seat. Private casita can be used for a separate guest suite, gym, or secluded home office. Home is offered to-be-built.
From Highway 101, take Pima/Princess exit and turn right to proceed N on Pima. Take right on E Happy Valley Rd and continue straight. Turn right on Ranch Gate Rd and then turn right on 125th Pl.
Dwelling Type: Residential
Subdivision: MCDOWELL MOUNTAIN MANOR
Year Built: 2026, County: N/A
From Highway 101, take Pima/Princess exit and turn right to proceed N on Pima. Take right on E Happy Valley Rd and continue straight. Turn right on Ranch Gate Rd and then turn right on 125th Pl.
Listing is courtesy of Toll Brothers Real Estate
Sign in to your account to continue