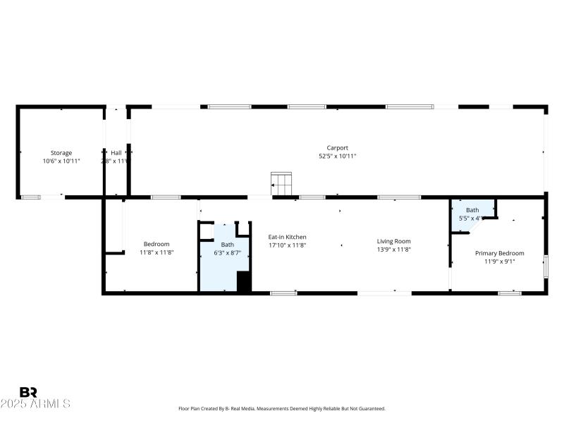
Well maintained 2 Bed/ 1.5 Bath home in the Gated Active Adult Community of Pleasant Valley with LOW Lot Rent that includes septic, trash & water. Open floor plan with an eat in kitchen, with a bonus heat/air conditioned AZ room off of the fully enclosed over sized single car garage perfect for storing your car and any other toys. Ample storage space with two sheds and an additional laundry room with extra shelves. Roof was replaced in 2019 with steel and 3 inch foam for extra insulation for added energy efficiency, Furnace and Heat Pump were also replaced in 2020, siding and most windows were replaced in 2021. Community amenities include a clubhouse and pool and weekly activities. Close to shopping and dining, this property combines comfort and convenience.
From Ironwood & Germann, head east on Germann Rd, turn right into the community entrance, follow the main road, then turn left at the second interior street to reach Unit #99.
Dwelling Type: Residential
Subdivision: S8 T2S R8E
Year Built: 1969, County: N/A
From Ironwood & Germann, head east on Germann Rd, turn right into the community entrance, follow the main road, then turn left at the second interior street to reach Unit #99.
Listing is courtesy of Rover Realty
Sign in to your account to continue