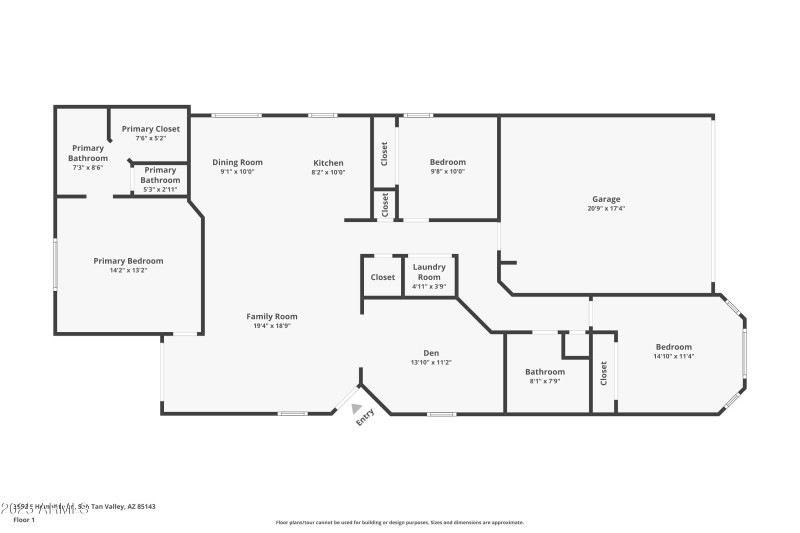
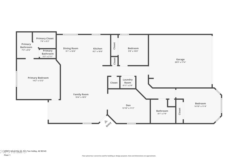
Welcome to this charming 3 bedroom, 2 bath single-level home w/ an open den in the desirable Copper Basin community! Step inside to an inviting floor plan featuring vaulted ceilings, a spacious great room, & a split layout for added privacy. The kitchen offers warm wood cabinetry, black appliances (refrigerator included!) & plenty of counter space for cooking & entertaining. The primary suite is generously sized with a private ensuite bathroom & walk-in closet. Secondary bedrooms are also nicely sized, perfect for family, guests, or home office. Enjoy Arizona living at its best in the beautiful, low-maintenance desert backyard—complete with an extended patio ideal for relaxing or hosting. Additional features include indoor laundry & a 2-car garage. Home is north/south facing on a quiet neighborhood street. Copper Basin offers a community pool, fitness center, multiple playgrounds & scenic walking paths. All furnishings including furniture are negotiable. Ask your Realtor about what items can stay if desired!
North on Gantzel. East on Judd. South on Prospector Lane. Right on Rose Quartz. Left on Coal Rd. which curves into Hematite. Your new home is on the right side of the street!
Dwelling Type: Residential
Subdivision: COPPER BASIN UNIT 5A
Year Built: 2009, County: N/A
North on Gantzel. East on Judd. South on Prospector Lane. Right on Rose Quartz. Left on Coal Rd. which curves into Hematite. Your new home is on the right side of the street!
Listing is courtesy of Ravenswood Realty
Sign in to your account to continue