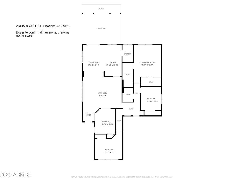
Perfect single-story home on a corner lot. 4 Bedrooms/2 Baths . [1 bedroom is currently a craft room; 1 as a den, 1 as a guest room plus the Master suite]. It's easy to miss the craft room located at the end of a hall. The living/dining/kitchen great room concept is open with a fresh & clean white kitchen which includes the 1-year old LG refrigerator/freezer (French doors, ice maker and water in the door. Separate laundry room off kitchen with granite counter, new Whirlpool washer/top loader and LG SteamDryer. 2-car garage with direct entry to home. The backyard is a private sanctuary with little needed to maintain it and enclosed by a tall fence for privacy.
Roof is about 10 years old. Exterior painted in 2022, Rear Sprinkler system new in 2022, A/C 2016, Water Heater 2019,
From Tatum, turn west onto Jomax to 41st Street (left). Corner house on left corner of Pinto Lane/41st Street. Sign is posted,
From Jomax - go East on Jomax; right on 41st Street to home
Dwelling Type: Residential
Subdivision: TATUM HIGHLANDS PARCEL 21
Year Built: 1998, County: N/A
From Tatum, turn west onto Jomax to 41st Street (left). Corner house on left corner of Pinto Lane/41st Street. Sign is posted,
From Jomax - go East on Jomax; right on 41st Street to home
Listing is courtesy of HomeSmart
Sign in to your account to continue