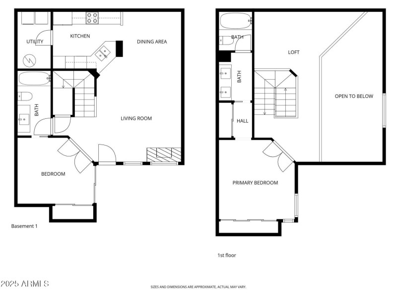
Remodelled townhouse in Moon Valley! New AC, hotwater heater & stainless steel appliances in 2023. Soaring ceilings & tons of natural light. Wood-look floors throughout, and a cozy living room complete with a fireplace. The large primary suite has 2 closets & a dual sink vanity. Nice loft area is perfect for a media hub, hobby zone, or chill-out corner. Downstairs bedroom has attached bathroom. Close to the pool & guest parking. HOA pays water, sewer & trash, along with roof, exterior maintenance & landscaping!
Head south on N 7th Ave, Turn left onto W Coral Gables Dr, Turn left onto N Hana Maui Dr, Turn left onto E Ponderosa Ln, Turn right onto N 1st Pl. Property will be om the left.
Dwelling Type: Residential
Subdivision: QUAIL HILL PARCEL A CONDOMINIUM AMD
Year Built: 1983, County: N/A
Head south on N 7th Ave, Turn left onto W Coral Gables Dr, Turn left onto N Hana Maui Dr, Turn left onto E Ponderosa Ln, Turn right onto N 1st Pl. Property will be om the left.
Listing is courtesy of Long Realty Unlimited
Sign in to your account to continue