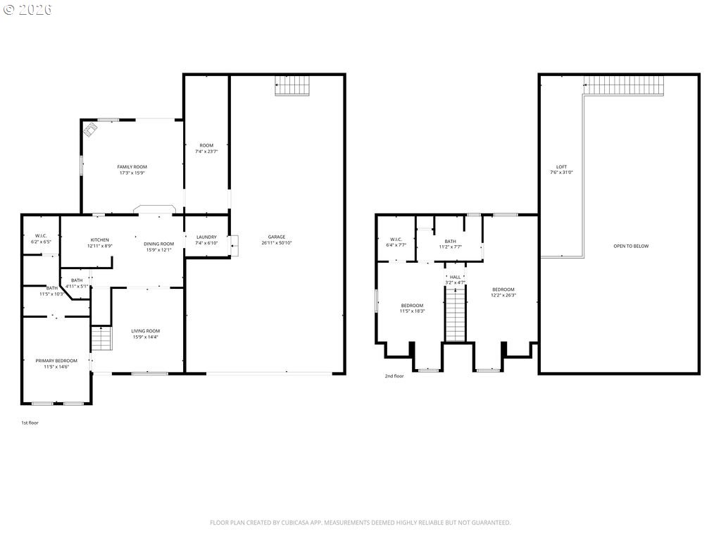
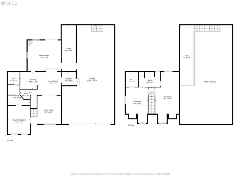
This lovely home features primary bedroom on the main, with two additional bedroom upstairs with a Jack and Jill bathroom. The exterior is a charming and spacious design, complemented by low maintenance landscaping and an ample driveway as well as a huge attached shop. This property backs to private green space. Inside, the home offers an abundance of natural light and a versatile layout with updated flooring throughout. The kitchen is equipped with ample cabinetry, providing ample storage space and updated appliances. The living areas are well-proportioned, creating a comfortable and welcoming atmosphere. A fireplace adds a cozy ambiance, while the covered patio and landscaped yard provide opportunities for outdoor enjoyment. The home also features a large attached shop, perfect for a variety of uses. Recent updates include fresh interior paint, a newer roof, HVAC system, water heater, and including solar power for a low electric bill, ensuring both comfort and efficiency. Additionally, the property offers RV parking and storage, making it ideal for those with recreational vehicles.
I-5 N, take exit 3 onto NE Hwy 99, Follow NE Ross St and NE 54th St to NE 55th St in Minnehaha
Dwelling Type: Residential
Subdivision: N/A
Year Built: 1998, County: US
I-5 N, take exit 3 onto NE Hwy 99, Follow NE Ross St and NE 54th St to NE 55th St in Minnehaha
Listing is courtesy of Coldwell Banker Bain
Sign in to your account to continue