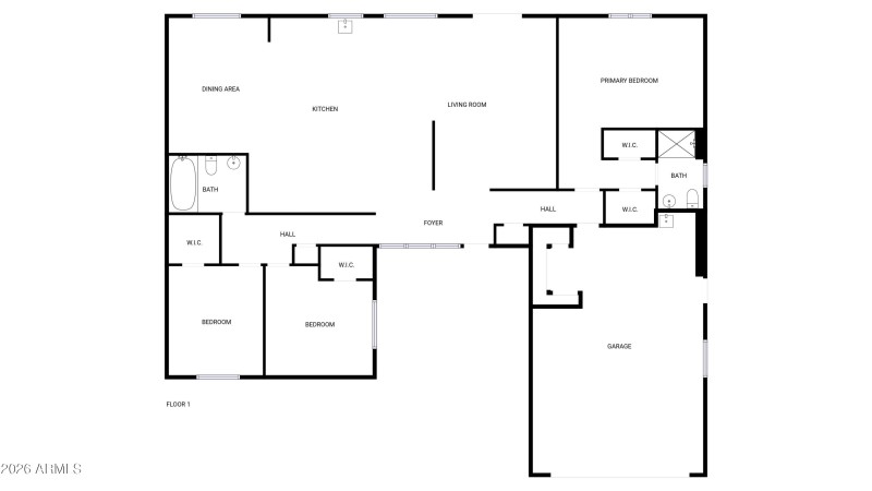
Welcome to this beautiful Sun City home, a lovely 55+ community. The kitchen is a chef's dream, boasting an accent backsplash and new appliances. All appliances are stainless steel, adding a modern touch. The fresh interior paint and new flooring throughout the home give it a clean, updated feel. The primary bedroom highlighted by a spacious walk-in closet. Outside, a covered patio extends the living space. while the fenced backyard provides a private setting and appreciate the beauty of low maintenance landscaping. Come enjoy these Arizona winters! Sun City's amenities are amazing with recreation centers, 8 golf courses, 130+ clubs, sparkling pools, pickleball, tennis, concerts, bowling. Included 100-Day Home Warranty with buyer activation.
Head west on W Union Hills Dr toward N 91st Ave. Turn left onto N Palo Verde Dr. Turn left onto W Spanish Moss Ln
Dwelling Type: Residential
Subdivision: SUN CITY 53
Year Built: 1978, County: N/A
Head west on W Union Hills Dr toward N 91st Ave. Turn left onto N Palo Verde Dr. Turn left onto W Spanish Moss Ln
Listing is courtesy of Opendoor Brokerage, LLC
Sign in to your account to continue