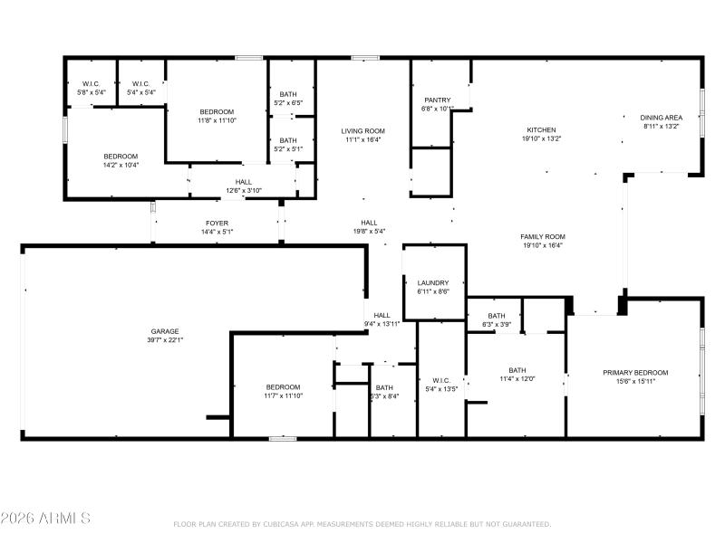
Spacious, Stylish, and Ready to Impress! Built in 2020 with over $150,000 in upgrades, this stunning 4-bedroom, 3-bathroom home perfectly combines modern design, thoughtful function, and standout details inside and out. From the moment you arrive, the curb appeal shines with upgraded landscaping, paver accents, RV parking, and a double gate that set the tone for what's inside. Step into a bright, open-concept living space designed for comfort and effortless entertaining. The kitchen is the true showpiece, featuring granite countertops, double ovens, a gas range, and a large island for both seating and prep. A walk-in pantry, modern lighting, and a sleek gray backsplash complete the polished look. The spacious primary suite offers privacy and a touch of luxury with a beautifully designed walk-in shower and ample closet space. Storage is plentiful throughout the home, making organization easy. The backyard has been transformed from a blank slate into your own private retreatpavers and turf create a clean, low-maintenance backdrop, while ficus and palm trees add a lush, resort-style feel. The swim spa offers year-round enjoyment, and the covered patio creates a perfect shaded space for dining or relaxing. A 10x20 storage shed adds extra flexibility for tools, hobbies, or storage needs.
W Olive Rd, S 183rd Ave, W Townley Ave, S Alice Ave, follow road, pass 185th Ave, house on the left.
Dwelling Type: Residential
Subdivision: WHITE TANK FOOTHILLS
Year Built: 2020, County: N/A
W Olive Rd, S 183rd Ave, W Townley Ave, S Alice Ave, follow road, pass 185th Ave, house on the left.
Listing is courtesy of Keller Williams Arizona Realty
Sign in to your account to continue