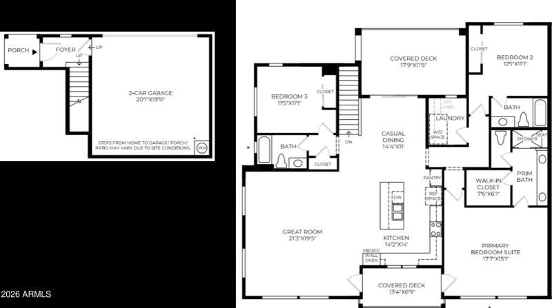
WOW—what's not to love about this move-in ready luxury home? The ideal layout places all bedrooms upstairs in separate locations, creating privacy and comfort for every lifestyle. The great room is truly expansive, framed by walls of windows that showcase the rare corner location and fill the home with natural light. A functional yet stylish kitchen features custom cabinetry and designer finishes, giving the home a true Arizona Oasis feel. Two rare covered outdoor decks provide the perfect spaces to enjoy Arizona's incredible weather year-round. Ready now and waiting for you, this residence blends luxury, functionality, and style in one unforgettable package.
AZ Loop 101 North to I-I7 North and exit Right onto E Sonoran Desert Drive. Pass through the light on Sonoran Desert Drive and entrance to the sales office with be on the right hand side.
Dwelling Type: Residential
Subdivision: VALLE NORTE CONDOMINIUM
Year Built: 2025, County: N/A
AZ Loop 101 North to I-I7 North and exit Right onto E Sonoran Desert Drive. Pass through the light on Sonoran Desert Drive and entrance to the sales office with be on the right hand side.
Listing is courtesy of Toll Brothers Real Estate
Sign in to your account to continue