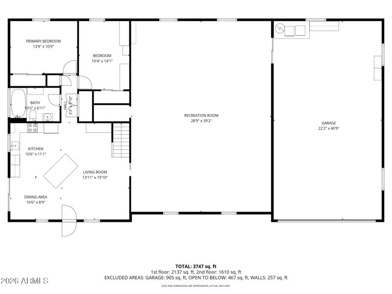
Wow! Amazing Home On A Full Acre In Wittmann, This Property Offers Space, Flexibility & Unbeatable Entertaining. Featuring Tile/Carpet/Vinyl Flooring, A Massive 1,200 Sq Ft Great Room & A Stunning Kitchen W/ Oversized Island, Espresso Cabinets, Granite Countertops & Stainless Steel Appliances. Upstairs Loft W/ Closet & Bath Can Serve As A 5Th Bedroom, Office Or Flex Space.
The Upstairs Primary Suite Is A Private Retreat W/ His & Hers Closets & Bath, Or Can Function As An Attached Guest Home W/ Private Entrance, Kitchen, Living Area & 2 Additional Bedrooms—Ideal For Multi-Gen Living Or Rental Income.
Outside Boasts A 1,000 Sq Ft Balcony, Huge Backyard, Covered Patio W/ Built-In Bar, Fire Pit, Basketball Court, Turf & Rv Gate Access, 4 car tandem garage. Rare Opportunity—Book Today!
Head northwest on US-60 W toward N 193rd Ave, Turn left onto N 203rd Ave, Turn left onto W Gordon Ct, W Gordon Ct becomes N 201st Ave, Turn right onto W Steedridge Rd. Property will be on the right.
Dwelling Type: Residential
Subdivision: Unincorporated area of Maricopa County
Year Built: 2014, County: N/A
Head northwest on US-60 W toward N 193rd Ave, Turn left onto N 203rd Ave, Turn left onto W Gordon Ct, W Gordon Ct becomes N 201st Ave, Turn right onto W Steedridge Rd. Property will be on the right.
Listing is courtesy of Realty ONE Group
Sign in to your account to continue