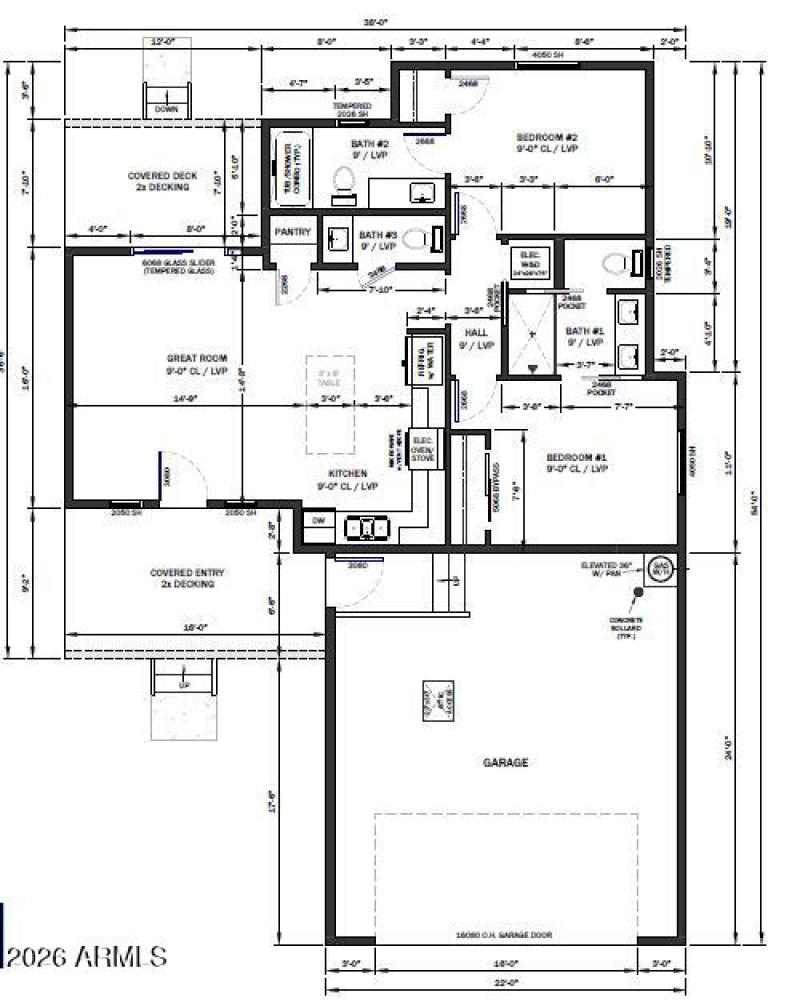
UNDER $300,000 for a brand new home is an unbelievable opportunity. The future of Show Low is in Show Low Bluff. This home is to be built using the buyers financing. The home features two primary suites with ensuites and a half bath for your guests. The thoughtful floor plan not only provides plenty of natural light and a feeling of spaciousness, but it also provide amazing outdoor living potential with front and back decks. Buyer to purchase the lot for $48,000 and contract with the builder for $251,500. Plan available with or without attached garage.
Us 60 to Penrod, right on Bluff Ridge Rd, Right on Rockcreek, lot on left
Dwelling Type: Residential
Subdivision: SHOW LOW BLUFF PHASE 1A
Year Built: 2026, County: N/A
Us 60 to Penrod, right on Bluff Ridge Rd, Right on Rockcreek, lot on left
Listing is courtesy of West USA Realty
Sign in to your account to continue