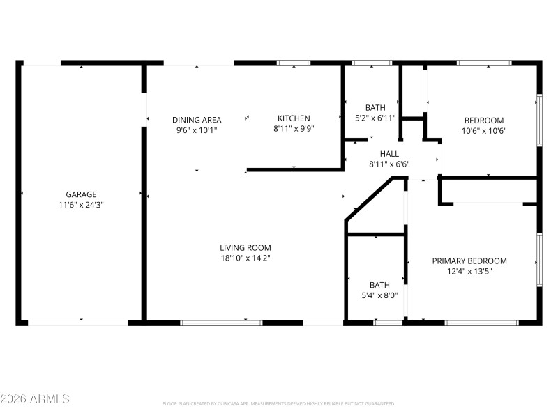
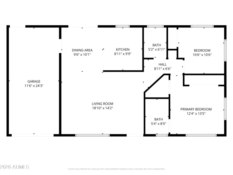
Charming single-story home in Prescott Valley! This 2-bed, 1-bath residence offers approx. 950 sq ft of comfortable living space on an 8,700+ sq ft lot, perfect for first-time buyers or wanting a second home get away. Inside features a functional layout with cozy living areas and a kitchen with full appliance set. Enjoy an atached garage plus a spacious backyard — ideal for outdoor living and future upgrades. Built in 1992, this property blends classic design with great potential in a convenient location near local amenities. Close to down town Prescott Valley, with no neighbors behind you. Specatular sunset mountain views.
Dwelling Type: Residential
Subdivision: PRESCOTT VALLEY 12
Year Built: 1992, County: N/A
Listing is courtesy of Long Realty Unlimited
Sign in to your account to continue