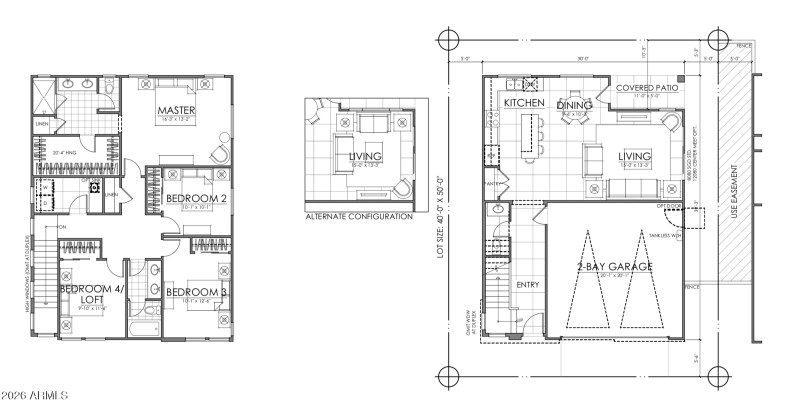
Welcome to Citrus Court by Arcadia Communities, a newly constructed community located conveniently in Arcadia! This desert contemporary home is brand new and features include an open and thoughtfully designed floor plan, 3 large bedrooms with upstairs laundry room, stainless steel appliances, quartz counters, gas range, kitchen island, Tankless gas water heater, & two car garage w/ 22V outlet. Live close to all the Arcadia hot spots like LGO, Postino's, North Italia, and Chelsea's Kitchen. Luxury living has never been so affordable! Gardening/landscaping service included for the front yard.
Dwelling Type: Residential Lease
Subdivision: ARCADIA CITRUS SQUARE NORTH
Year Built: 2020, County: N/A
Listing is courtesy of E & G Real Estate Services
Sign in to your account to continue