Fully remodeled 4 bedroom, 4 bathroom home offers 3,390 square feet of updated living space, mountain views, and a contemporary backyard designed for Arizona living in the desirable McDowell Mountain Ranch community.
The kitchen was completely remodeled in 2022 and is truly the heart of the home. Quartz countertops, a large, 9.5 ft long island with storage, herringbone tile backsplash, built-in refrigerator, double ovens, microwave drawer, and a spacious walk-in pantry with a second refrigerator make it as practical as it is beautiful.
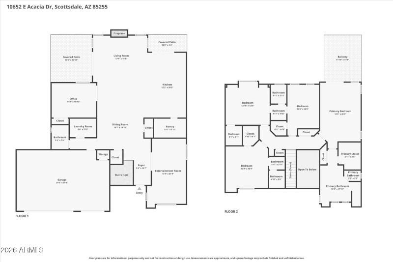
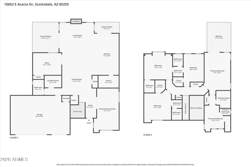
The layout is both functional and flexible. First floor includes a private office with double doors and closet, a flex room with double pocket doors that can be closed off for a media room or bonus space, and a fully remodeled bathroom. Engineered hardwood floors run throughout the downstairs, complemented by new solid core doors, updated lighting, LED fixtures, and a striking wood and metal staircase. Floor to ceiling windows in the family room bring in natural light and highlight the stacked travertine stone fireplace.
Upstairs, all four bedrooms feature en suite bathrooms and walk-in closets, a rare and highly desirable layout. The primary suite offers mountain views from a private balcony, along with a fully remodeled spa-like bath completed in 2019 with a free-standing soaking tub, enclosed tiled shower, and two closets.
The backyard was fully redesigned in 2022 and feels like a private retreat backing to a wash. The PebbleTec pool and spa, gas fire pit, built-in BBQ with travertine countertop, louvered pergola, putting green, and turf create multiple spaces to relax or entertain. An RV gate, above-ground garden beds, storage shed, and updated front landscaping add more beauty and functionality.
Additional upgrades include multiple AC units replaced (2022), a remodeled laundry room, epoxy garage floors in the 3-car garage, and a freshly painted exterior.
Living in McDowell Mountain Ranch means access to recreation centers, hobby clubs and special events, plus tennis, pickleball, basketball courts, heated pools and spas, playgrounds, and miles of walking and biking paths. Top-rated Desert Canyon Elementary/Middle School, Arabian library, and public golf are located within the neighborhood. Easy access to Scottsdale's best shopping, dining and the 101 Freeway. This is a rare opportunity - a move-in ready, remodeled home in a special, desirable community.
East on Bell Rd to 108th Street, South on 108th Street, Right on Acacia to home on right.
Dwelling Type: Residential
Subdivision: McDowell Mountain Ranch
Year Built: 1998, County: N/A
East on Bell Rd to 108th Street, South on 108th Street, Right on Acacia to home on right.
Listing is courtesy of Berkshire Hathaway HomeServices Arizona Properties
Sign in to your account to continue