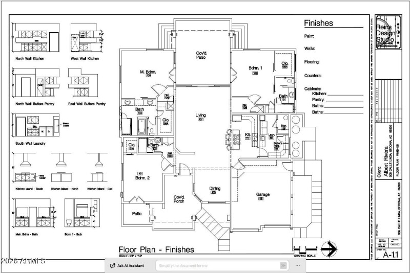
Welcome to the newest and best that Casa Contenta has to offer. A 2677 square foot, single level custom home offered by Riviera Luxury Homes. Constructed by award winning Grand Master Mason Alberto Rivera, this 100% masonry home will be unlike any home in the surrounding area. With every brick and every stone carefully placed to highlight the ancient craft of masonry at the highest level. The benefits of this masonry masterpiece will be a fireproof, termite proof, mold proof, waterproof, soundproof home with R45 insulation. If you act quickly there's still time to pick your finishes. Once completed you'll enjoy this three-bedroom split-floor plan that accentuates the kitchen, butler's pantry, and oversized storage area as well as the main living area. Outdoor entertainment areas... include a covered porch and outdoor front patio seating area as well as a backyard covered patio. Surround sound throughout the home will relax you into the enjoyment of everything that Sedona has to offer. Come, be at peace, enjoy your new home. See the QR code for more information, floor plans, and finishes. This one-of-a-kind home is only offered exclusively by Riviera Luxury Homes.
Sedona - Hwy 89A, North on Soldiers Pass Rd, right on Calle Diamante, left on Calle Linda to property on left.
Dwelling Type: Residential
Subdivision: CASA CONTENTA
Year Built: 2026, County: N/A
Sedona - Hwy 89A, North on Soldiers Pass Rd, right on Calle Diamante, left on Calle Linda to property on left.
Listing is courtesy of RMA-Mountain Properties
Sign in to your account to continue