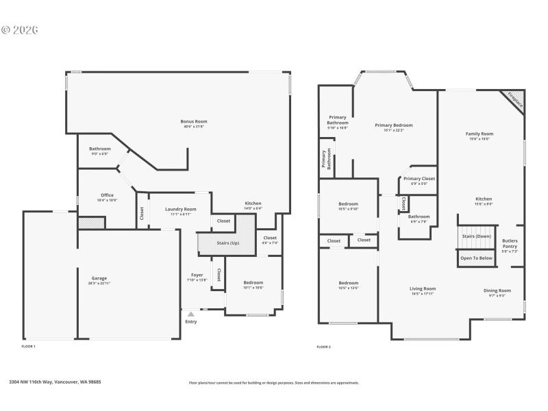
Discover this Felida gem on a beautifully landscaped corner lot! The inverted floor plan puts your main living spaces — kitchen, family room, living room, dining room, and primary suite — upstairs, flooding them with natural light and treetop views. The chef's kitchen features granite counters, stainless appliances, a butler's pantry, and an island, flowing seamlessly into the vaulted family room with gas fireplace. The spacious primary suite includes a walk-in closet and a stunning remodeled en-suite bath. The main level offers incredible flexibility with a massive bonus room, kitchenette, office, bedroom, half bath, and laundry — perfect for guests, a home gym, or multi-gen living. Outside, enjoy a covered deck, paver patio, hot tub, two water features, raised garden beds, and a lush side yard — all fully fenced. The 3-car garage adds to the exceptional value rarely found at this price point.Newer roof (2018), updated carpet, and full backyard landscaping refresh (2020). Close to shopping, parks, and dining. All appliances included!
Lakeshore Ave - East on 115th St - North 116th Way
Dwelling Type: Residential
Subdivision: N/A
Year Built: 1996, County: US
Lakeshore Ave - East on 115th St - North 116th Way
Listing is courtesy of eXp Realty LLC
Sign in to your account to continue