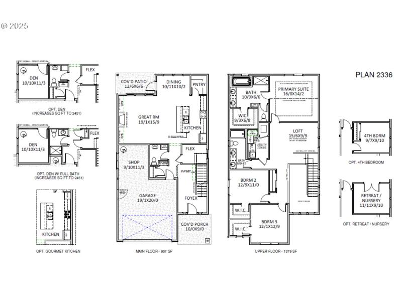
2336 Floor Plan. Starts construction in April. Beautiful new 3 car-garage floor plan with added shop space, great room concept, dining nook, and flex space on the main floor plus a primary suite and three additional bedrooms on the second level. Home features a gas fireplace, 9ft ceilings on main, quartz countertops throughout, gas range, and a large primary bedroom with walk-in closet & soaking tub. High efficiency heat pump with A/C, 65 gallon heat pump water heater, fencing, covered patio, front yard sod and irrigation included. Community features walking trails, green spaces, and park areas. Sample images - actual finishes and colors will vary.
(EAST OF I-5) From Pioneer St, Rt S 65th, Lft S 5th, Lft N 85th, Rt N 4th St, Rt on N 86th Pl
Dwelling Type: Residential
Subdivision: GREELY FARMS
Year Built: 2026, County: US
(EAST OF I-5) From Pioneer St, Rt S 65th, Lft S 5th, Lft N 85th, Rt N 4th St, Rt on N 86th Pl
Listing is courtesy of Holt Homes Realty, LLC
Sign in to your account to continue