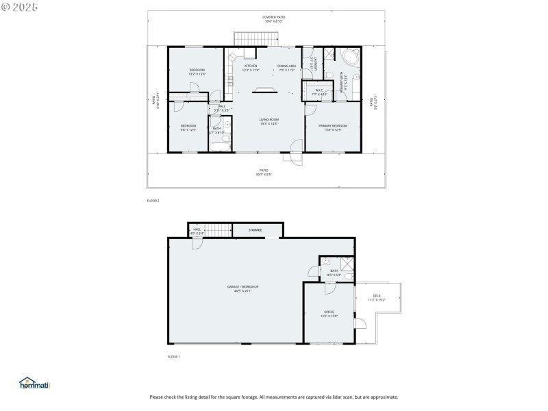
Strategic winter price and best utility space in town! Welcome to 2545 Military Ave, Roseburg—a one-of-a-kind property with incredible privacy, views, and flexibility! This freshly updated 3 bed, 2 bath home features a tile kitchen, spacious living areas, a large deck to drink morning coffee and enjoy the view, a pond in the back yard, and room for a small garden. Enjoy the serenity of country living while staying just minutes from town. The property also boasts a finished shop (county has it listed as a basement and is 1350 sq ft) with heated floors (seller has not used them), a full bath, and a separate room that could serve as an office or bedroom. There is even space to add a small full kitchen, creating the perfect setup for a mother-in-law suite, guest quarters, full office, or ADU.With amazing views, privacy, and move-in ready updates, this home offers endless possibilities for living, working, and entertaining. Truly a rare find in the Roseburg market!
Harvard to Lookingglass rd to Military
Dwelling Type: Residential
Subdivision: N/A
Year Built: 2001, County: US
Harvard to Lookingglass rd to Military
Listing is courtesy of Real Broker