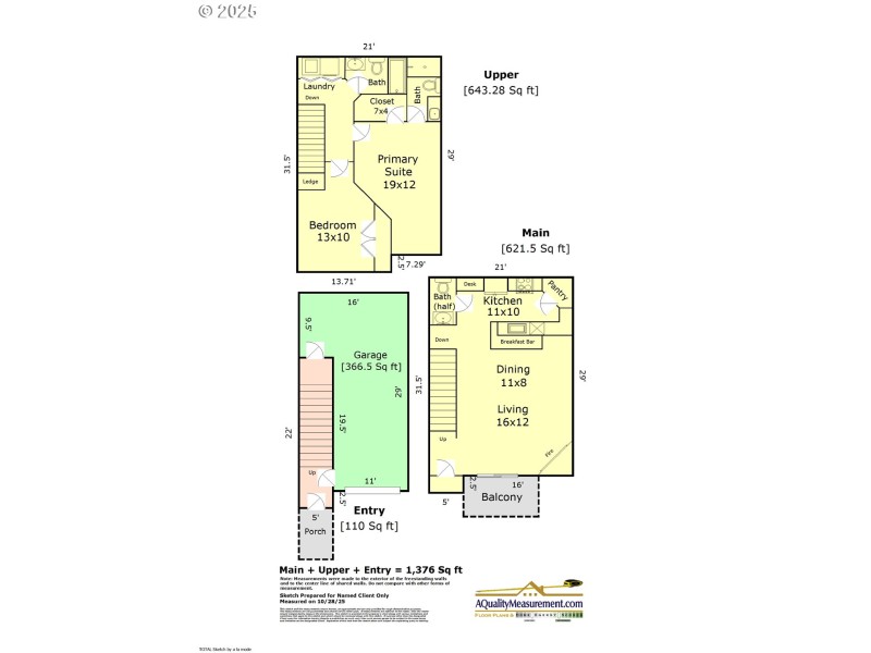
Welcome to Summerlinn—a resort-style community surrounded by trees, trails, and the natural beauty of West Linn. This light-filled 2-bedroom, 2.5-bath townhouse-style condo blends modern updates with everyday comfort, just moments from North Willamette Neighborhood Park, downtown Willamette, and easy I-205 access.Step inside to open, connected spaces designed for today's lifestyle. The freshly painted kitchen features quartz counters, stainless-steel appliances, and a walk-in pantry. The dining and living areas flow seamlessly together, anchored by a cozy gas fireplace and a custom shelving unit. Engineered hardwood floors and newer lighting throughout the main level add warmth and style.Upstairs, the primary suite offers custom wall finishes, a walk-in closet, and an updated bath with tile floors and a walk-in shower. The second bedroom includes a charming loft-style nook—an inviting spot to curl up with a book. Both bedrooms and the upper level feature soft wall-to-wall carpet for added comfort. A convenient upper-level laundry closet includes shelving and a newer washer/dryer.Enjoy your morning coffee or unwind at sunset on the covered deck, complete with accent lighting and a sunshade for privacy. The oversized one-car garage includes a workbench, shelving, and extra storage.At Summerlinn, residents enjoy more than just a home—they enjoy a lifestyle. The community offers a stunning clubhouse with fitness center, library, and business lounge, plus a pool, hot tub, tennis and basketball courts, and BBQ area. HOA dues include exterior maintenance, water, sewer, and use of all recreational amenities, so weekends are free to explore nearby parks, trails, and local shops instead of worrying about upkeep.Move-in ready and beautifully maintained, this home offers the perfect blend of nature, convenience, and comfort.
I-205 to 10th St Exit,head North then L on Blankenship, then R on Summerlinn Dr. Left at monument
Dwelling Type: Residential
Subdivision: SUMMERLINN ESTATES
Year Built: 2005, County: US
I-205 to 10th St Exit,head North then L on Blankenship, then R on Summerlinn Dr. Left at monument
Listing is courtesy of Eleete Real Estate