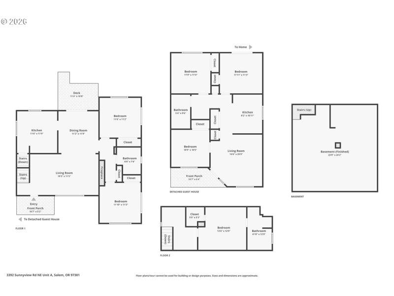
Your second chance at an exceptional dual living opportunity, ideal for House Hacking, Investment, or Multigenerational Living. This versatile property offers a rare combination of a classic, well maintained main home paired with a virtually brand new, detached second residence. Exceptional flexibility or income potential. The primary residence offers approximately 1,375 square feet of comfortable living space with 3 bedrooms and 2 bathrooms. Two bedrooms and a full bathroom are located on the main level, anchored by a welcoming living area with a fireplace and a recently updated kitchen. Upstairs, the private primary suite features a walk in closet and an ensuite bathroom with a fully tiled shower. Notable features include new flooring in 2025, a newer furnace and water heater, vinyl double pane windows, and numerous additional tune ups that make this home truly move in ready. A full unfinished basement provides storage space, or potential for additional living space. Central heating and cooling, along with a large rear deck, round out the homes functionality and comfort. The detached second residence was built in 2022 and received its final finishes and Certificate of Occupancy in 2025. This single level home offers approximately 897 square feet, featuring 2 bedrooms plus an office and 1 bathroom. With modern construction and brand new finishes, it is ideal for rental income, extended family, or a private work from home setup. Both homes are situated on an over 10,000 square foot lot, the property features established landscaping, a partially fenced yard, and a dedicated firepit area, creating a functional and inviting outdoor setting for both residences. Exceptional proximity to shopping and I5. Whether you are a first time buyer looking to offset your mortgage through house hacking, an investor seeking multiple income streams, or a larger household in need of a true dual living arrangement, this property delivers flexibility that is incredibly hard to find.
From Market St, N on Hawthorne, Left on Sunnyview
Dwelling Type: Residential
Subdivision: N/A
Year Built: 1937, County: US
From Market St, N on Hawthorne, Left on Sunnyview
Listing is courtesy of Berkshire Hathaway HomeServices Real Estate Professionals
Sign in to your account to continue