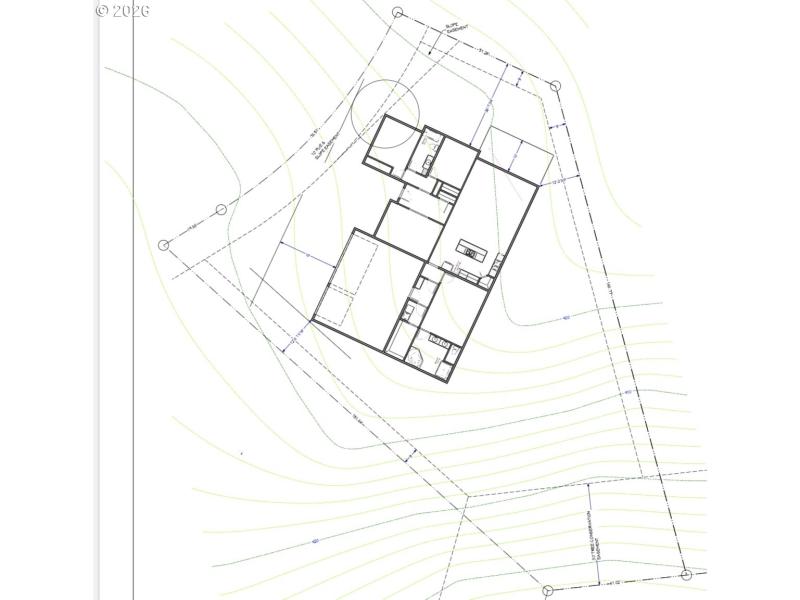
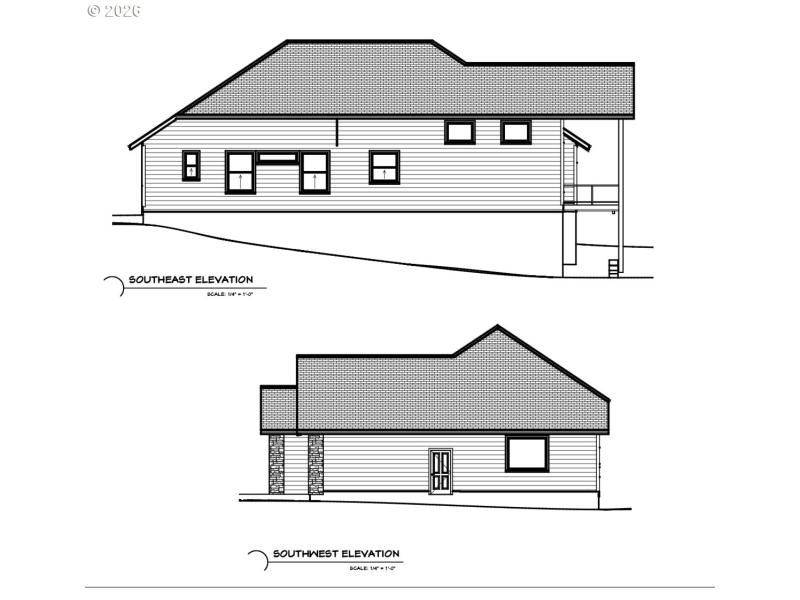
Last single story new construction home in the beautiful Mountaingate subdivision located at the top of the Thurston Hills. Surrounded by trees, hiking trails, and beautiful valley views, this 2026 home will feature large vaulted ceilings, 3 car garage, and over 2300 sqft all on one level! Construction to begin June of 2026 and options to select and customize finishes are still available.
E on Main to S on 64th to L on ForestRidge Dr to L on S66th Pl
Dwelling Type: Residential
Subdivision: N/A
Year Built: 2026, County: US
E on Main to S on 64th to L on ForestRidge Dr to L on S66th Pl
Listing is courtesy of Bell Real Estate
Sign in to your account to continue