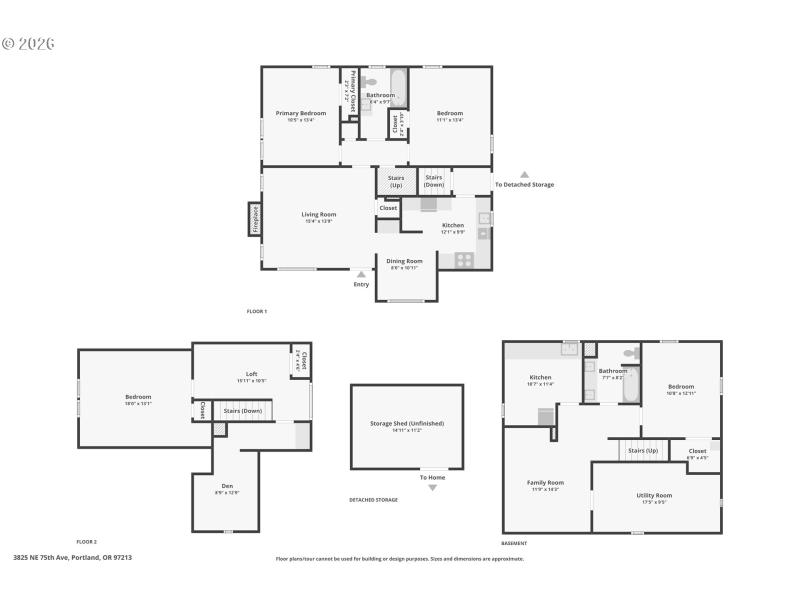
Welcome home! This spacious, well-maintained home is move-in ready in sought-after Roseway. Enter into the living room with a fireplace and lots of room to entertain. The remodeled kitchen boasts stainless steel appliances and new cabinets with ample storage. Two good-sized bedrooms with a full bath complete the main. Upstairs has another bedroom and unique reading nook for a quiet little sanctuary on rainy days. The lower level includes a bedroom, full bath, updated kitchenette, and den area perfect for movie room, workout space, office, arts/crafts area, possible ADU - wherever your imagination takes you. The spacious, fully fenced backyard includes a hot tub, large storage shed (with permitted electrical), chicken coop, and plenty of room for gardening. This is the home you've been searching for, come take a look! So many upgrades: 2018 - new roof, radon mitigation system, kitchen update, bathroom update, basement kitchenette update; 2020 - new deck; 2021 - new water heater, new lower level carpet; 2022 - new backyard storage shed, new windows, new furnace; 2024 - new A/C. [Home Energy Score = 3. HES Report at https://rpt.greenbuildingregistry.com/hes/OR10017613]
NE 75th Ave and NE Failing St
Dwelling Type: Residential
Subdivision: ROSEWAY
Year Built: 1926, County: US
NE 75th Ave and NE Failing St
Listing is courtesy of Redfin
Sign in to your account to continue