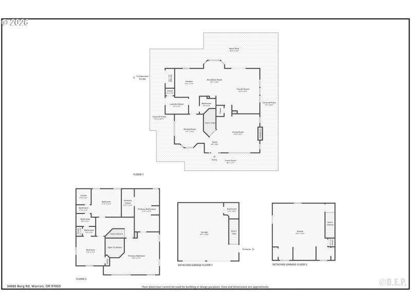
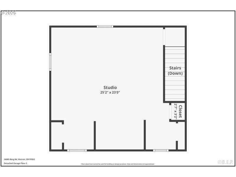
Enjoy the charm of country living with this classic farmhouse set on a peaceful small-acreage property in Warren. A welcoming wraparound porch and timeless architectural details create inviting curb appeal, while the interior offers warm hardwood floors, a formal living room with a beautiful fireplace, and abundant natural light. The farmhouse-style kitchen features rich cabinetry, stainless steel appliances, and generous workspace, ideal for everyday living and entertaining. Outside, the property truly shines with open lawn areas, mature landscaping, and room for gardening, animals, or outdoor projects. A detached shop/garage provides excellent space for hobbies, equipment, or storage, adding versatility rarely found at this size. The studio space allows for so many options. Private yet convenient, this property offers the perfect blend of rural character, functional acreage, and comfortable living—an ideal setting for those seeking a quieter lifestyle with room to grow. Designed and built by a master craftsman, you will feel the difference when you walk through the home. This home and property will make you dream of the lifestyle changes you have always wanted. Schedule for your private showing today.
Hwy 30 to Berg Rd to home on right
Dwelling Type: Residential
Subdivision: N/A
Year Built: 1995, County: US
Hwy 30 to Berg Rd to home on right
Listing is courtesy of RE/MAX Powerpros
Sign in to your account to continue