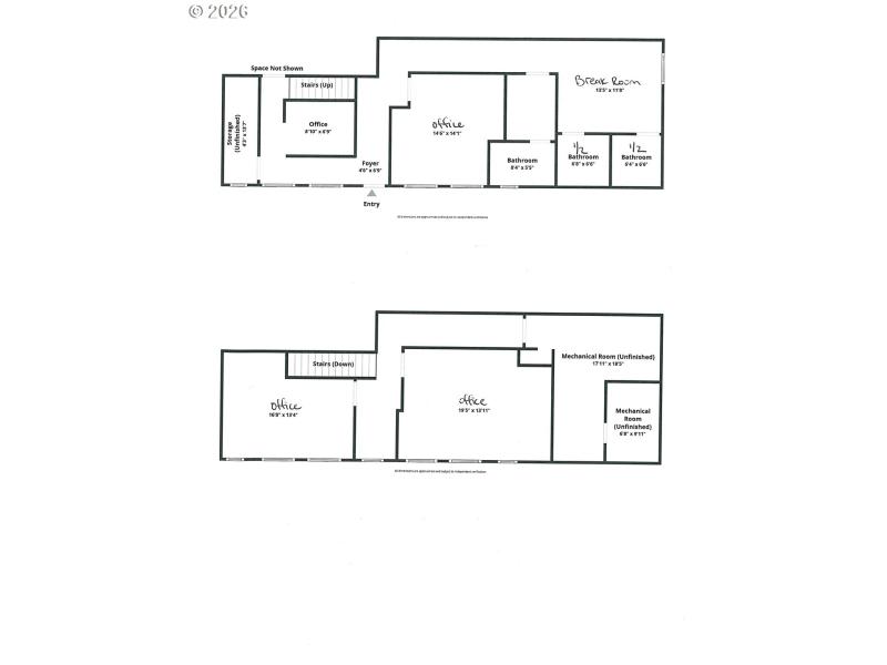
Prime commercial opportunity with high-visibility frontage on U.S. Route 395 S. This 7,852 sq ft building offers excellent flexibility for warehouse, light industrial, or business use. Currently utilized as storage, the layout includes a front office/reception area with direct access to the warehouse and breakroom/office space.The office area is equipped with both a heat pump and ducted propane furnace, while the warehouse is unheated—ideal for storage or customizable to suit your operation. The rear portion features two full bathrooms with locker space, heated and supported by an on-demand hot water system.Power is a standout feature with four 200-amp panels, providing ample capacity for a variety of commercial uses. The property includes three loading docks for efficient logistics.Situated on two tax lots totaling 2.49 acres—one developed (.87 acres) and one vacant (1.62 acres)—this property offers expansion potential. Zoned General Industrial and located within the John Day Urban Growth Boundary, this is a versatile investment with room to grow.
hwy 395 s
Dwelling Type: CommercialSale
Subdivision: N/A
Year Built: 1957, County: US
hwy 395 s
Listing is courtesy of Madden Realty
Sign in to your account to continue