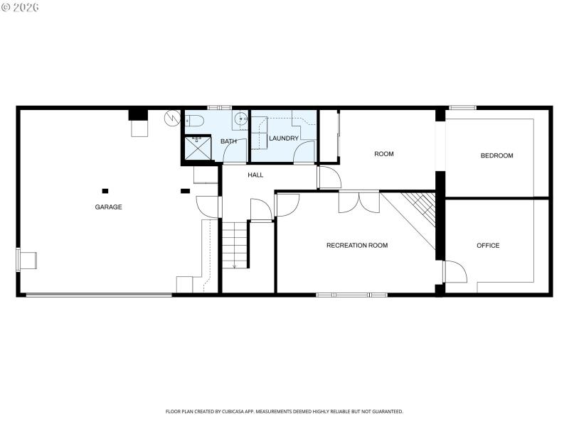
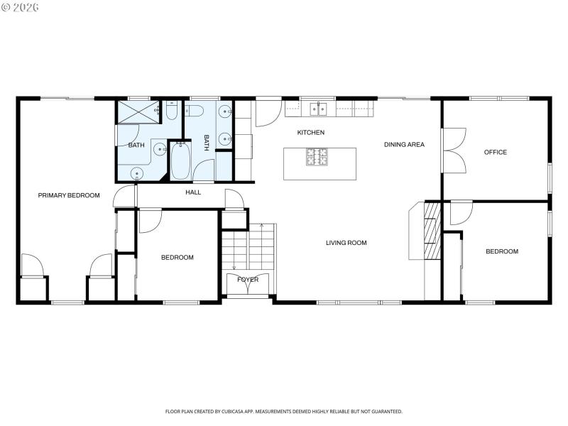
Welcome to this beautifully designed 2,979 sq ft home offering the perfect blend of comfort, style, and location. Featuring 4 spacious bedrooms and 3 full bathrooms, this property is thoughtfully laid out with an open floor plan ideal for both everyday living and entertaining. The well appointed kitchen is the heart of the home, complete with a large cook island, ample cabinetry, and seamless flow into the living and dining areas. Expansive windows throughout fill the home with natural light, highlighting the rich hardwood floors and creating a warm, inviting atmosphere. Two fireplaces add charm and comfort. Retreat to the large primary suite, which offers private access to the deck, perfect for enjoying peaceful mornings. Many rooms capture peek-a-boo river views, enhancing the home’s tranquil setting. Step outside to enjoy a level, lush, and private backyard, ideal for relaxation or gatherings. The front yard is equally inviting, offering usable entertaining space with scenic views. An oversized attached garage provides generous storage and convenience. Situated across from riverfront homes and just a short distance to river access, this home is a gateway to abundant outdoor recreation right outside your door. With an unbeatable location close to Starbucks, grocery stores, restaurants, an elementary school, a boat ramp, and a nearby state park, you’ll enjoy both convenience and lifestyle. This is a fantastic opportunity to own a home that truly has it all: space, light, nice views, and an exceptional setting. Three photos are AI renderings of an updated look on the classic split level home.
Hwy 43/ East on Walling Way/ Left on Old River/ Right on Elmran/ Left on Calaroga to home on left
Dwelling Type: Residential
Subdivision: ROBINWOOD ESTATES
Year Built: 1974, County: US
Hwy 43/ East on Walling Way/ Left on Old River/ Right on Elmran/ Left on Calaroga to home on left
Listing is courtesy of Real Broker
Sign in to your account to continue