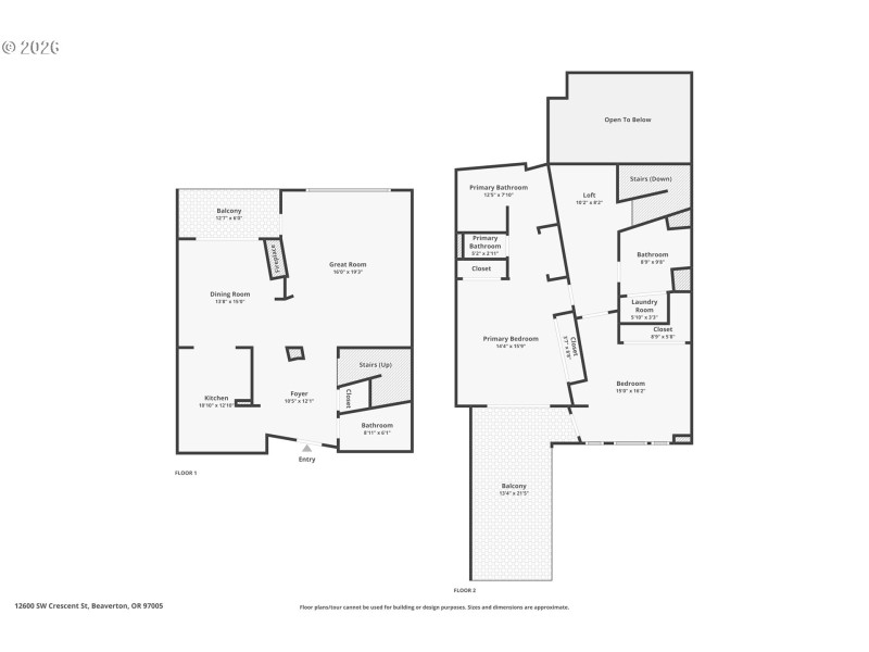
Welcome to Penthouse Unit #408 at The Round an exceptional top floor residence in the heart of Beaverton. This light filled 2-bedroom, 2.5-bath penthouse features soaring ceilings, expansive windows, multiple balconies, and Mt. Hood views on clear days. The open concept kitchen is designed for everyday living and entertaining, featuring a Viking range, warming drawer, French-door KitchenAid refrigerator, ample cabinetry, and seamless flow into the living and dining areas. The primary suite includes a spa like en-suite bath, while the second bedroom accommodates guests. An upstairs loft provides dedicated office space, and a main level half bath adds convenience. The penthouse location offers added privacy and quiet. Two dedicated parking spaces are included, with EV charging available in the garage. The parking garage and the Reser Center are located directly across from the front door. MAX Light Rail access is just outside the building, offering easy connectivity to downtown Portland, the airport, and beyond. Surrounded by restaurants, coffee shops, shopping, and entertainment, The Round delivers sophisticated, low maintenance living in one of Beaverton’s most vibrant communities. Come and see for yourself how The Round is a hub of entrepreneurship fostering creativity, ease of transportation options, and a European promenade feel or visit theroundbeaverton.com to learn more!
Hwy 217, West on Beaverton-Hillsdale, North on Hall Blvd, Left on SW Crescent St.
Dwelling Type: Residential
Subdivision: N/A
Year Built: 2003, County: US
Hwy 217, West on Beaverton-Hillsdale, North on Hall Blvd, Left on SW Crescent St.
Listing is courtesy of MORE Realty
Sign in to your account to continue