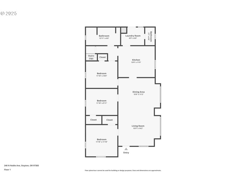
Welcome to this charming home tucked away on quiet street in Stayton! With updates throughout—including a new roof, fresh flooring, modern paint, and beautifully remodeled bathrooms—you’ll find it move-in ready and full of comfort. Step outside to a park-like backyard designed for entertaining and relaxation. Enjoy a tranquil water feature, harvest fruit from your pear tree, blueberries, raspberries, and strawberries w/ UGS. The play structure adds extra fun, while the private setting makes it a true retreat.
Exit 12 from HWY 22, South on Gun Club Rd, Left on W Ida St, Right on N Noble Ave
Dwelling Type: Residential
Subdivision: N/A
Year Built: 1930, County: US
Exit 12 from HWY 22, South on Gun Club Rd, Left on W Ida St, Right on N Noble Ave
Listing is courtesy of Windermere Heritage