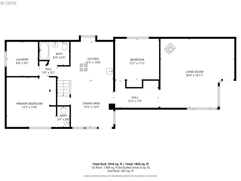
Tucked away on .19-acre flagship lot, this 1926 home offers the rare combination of privacy and move-in-ready peace of mind. Versatile upper-level loft suite features full bath & large walk-in closet, creating a secluded workspace for remote professionals, an artist's studio, or primary bedroom sanctuary. The main level offers a primary bedroom with a classic bay window & half bath, another bedroom, full bath & brilliant natural light throughout the living room, dining area, kitchen, and large laundry room.Experience the joy of a hidden estate with the convenience of South Salem living at your fingertips. Many amenities close by: parks, restaurants, coffee shops, schools. Meticulous 2025 updates include vinyl floors throughout, interior paint, a comprehensive French drain system & new sump pump, new beams in basement, & re-done crawlspace. This home is designed for those who appreciate functional, custom spaces. Positioned at the end of a long, private drive on a flagship lot, this home provides a "detached" feel from the bustle of the city while keeping you close to all that South Salem has to offer. DIRECTION NOTE: GPS may misdirect to the private road behind the home. To find your new sanctuary, please navigate to the Troth Ct SE cul-de-sac and look for the sign marking the driveway.
E on Vista Av, R on Troth Ct SE, L at driveway between 3080 Troth & 3040.
Dwelling Type: Residential
Subdivision: N/A
Year Built: 1920, County: US
E on Vista Av, R on Troth Ct SE, L at driveway between 3080 Troth & 3040.
Listing is courtesy of Coldwell Banker Mountain West
Sign in to your account to continue