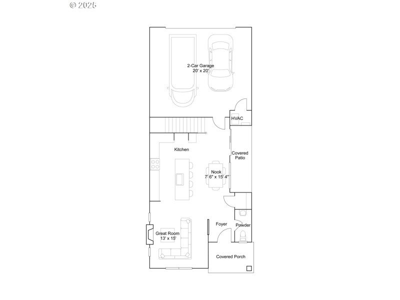
Welcome to Brynhill by Lennar and the Chambrey plan in beautiful North Plains. Multitasking and entertaining is made simple in this new move-in ready two-story 3 bedroom, 2.5 bath single-family home. An open floorplan is shared between the great room, kitchen and nook on the first level of the home. Sliding glass doors behind the nook lead to the outdoor space. All three bedrooms are located upstairs, including the primary suite with an en-suite bath featuring double vanities with separate bath and shower plus a spacious walk-in closet. The two secondary bedrooms share a convenient Jack-and-Jill style bathroom in between them. Interior highlights include quartz countertops, shaker-style cabinets, LVP flooring in kitchen/entry way, LVT flooring in baths, a cozy fireplace in the great room and much more. This home also includes central air conditioning, a refrigerator, washer and dryer, and blinds—all at no extra cost! This brand new community is loaded with amenities including multiple onsite parks featuring pickleball, basketball, a putting green, a cornhole area, playgrounds, and picnic areas. Homesite 442.
US-26 to Glencoe Rd north, left on North Ave, right on 309th, left on Yorkshire to Welcome Home Ctr
Dwelling Type: Residential
Subdivision: BRYNHILL
Year Built: 2025, County: US
US-26 to Glencoe Rd north, left on North Ave, right on 309th, left on Yorkshire to Welcome Home Ctr
Listing is courtesy of Lennar Sales Corp