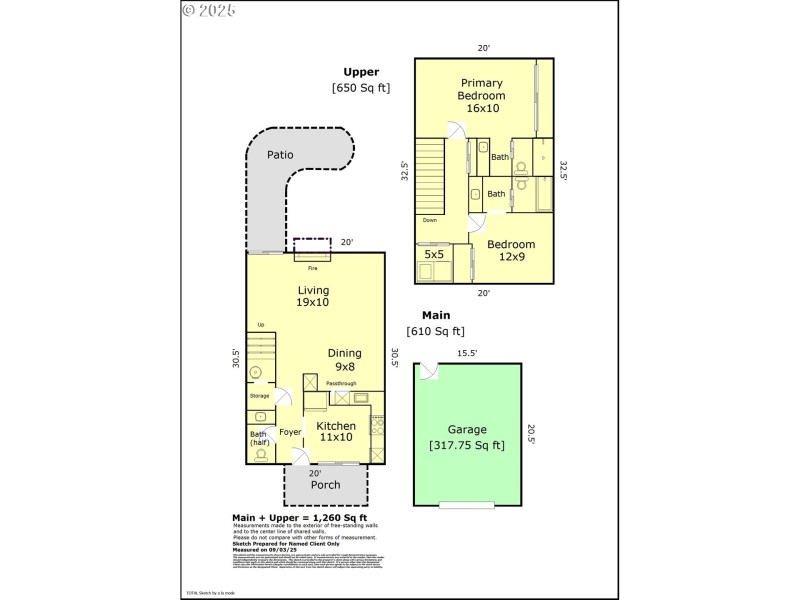
Charming Mediterranean-style condo featuring two private courtyard patios that evoke the feel of a European villa. The enclosed backyard is a lush retreat with a Japanese Maple and a Redbud Forest Pansy tree creating a green oasis. Inside, the spacious living and dining area is filled with natural light from large picture windows and warmed by a cozy gas fireplace. The kitchen, remodeled in 2018, offers a newer cooktop, oven, dishwasher, and garbage disposal. Upstairs, both bedrooms include beautifully remodeled bathrooms, complemented by new carpet and fresh interior paint throughout. Additional highlights include a 1-car garage and a new roof and gutters in 2024 and new exterior paint 2025. HOA amenities cover water, sewer, garbage, clubhouse access, exterior maintenance, beautifully maintained grounds, and ample guest parking.
257th Ave / Stark, S on 29th St, W on 2nd Dr
Dwelling Type: Residential
Subdivision: N/A
Year Built: 1980, County: US
257th Ave / Stark, S on 29th St, W on 2nd Dr
Listing is courtesy of Windermere Realty Trust