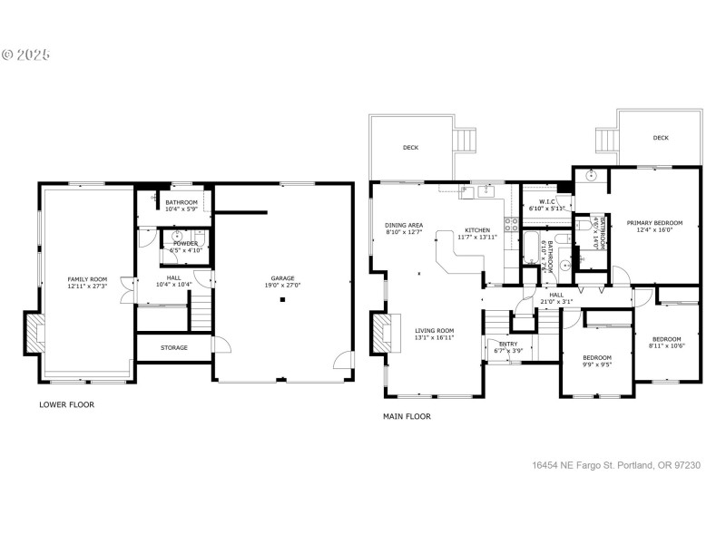
Set on a quiet dead-end street with no through traffic, this split-level home backs to trees for added privacy. The freshly painted exterior welcomes you in. Inside, the vaulted living and dining room features a warm wood ceiling, large windows, and a stone fireplace perfect for unwinding after a long day. The kitchen overlooks the yard and opens to two covered decks, ideal for year-round gatherings. The main level offers 3 bedrooms and 2 baths, while the lower level has a large 4th bedroom and full bath, great for guests, a home office, or multi-generational living. Additional features include an oversized two-car garage, RV/boat parking, and ample driveway space. Just minutes to I-84 and Glendoveer Golf & Tennis, this home combines a tucked-away feel with a quick commute. Well-kept and inviting, it’s ready for the next owner to make it their own.
From NE 162nd, go East on Fargo STREET to dead end, then u turn and first right
Dwelling Type: Residential
Subdivision: N/A
Year Built: 1979, County: US
From NE 162nd, go East on Fargo STREET to dead end, then u turn and first right
Listing is courtesy of Kelly Right Real Estate of Portland, LLC