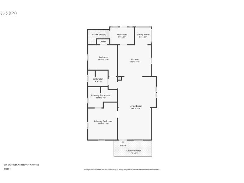
Welcome to this charming Craftsman in the heart of the highly sought-after Carter Park neighborhood. An inviting open floor plan highlights restored floor-to-ceiling cabinets, quartz counters, stainless appliances, tile details, and a cozy eating nook. Period-correct light fixtures, cherry doors with beautiful hardware, tall ceilings, picture molding, and wavy glass add timeless character throughout.The main floor includes two bedrooms and two full baths with hardwood floors. Downstairs, large windows fill the basement with natural light, offering versatile living or work-from-home space. Enjoy modern comforts like newer gas forced air and A/C, a classic front porch, sprinklers, and a fully fenced backyard—just a short walk to Uptown Village shops, restaurants, and entertainment.
I-5, Fourth Plain Exit West, North on Columbia st, West on 35th st
Dwelling Type: Residential
Subdivision: CARTER PARK/LINCOLN
Year Built: 1920, County: US
I-5, Fourth Plain Exit West, North on Columbia st, West on 35th st
Listing is courtesy of Premiere Property Group, LLC
Sign in to your account to continue